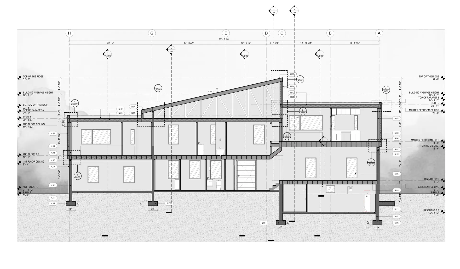
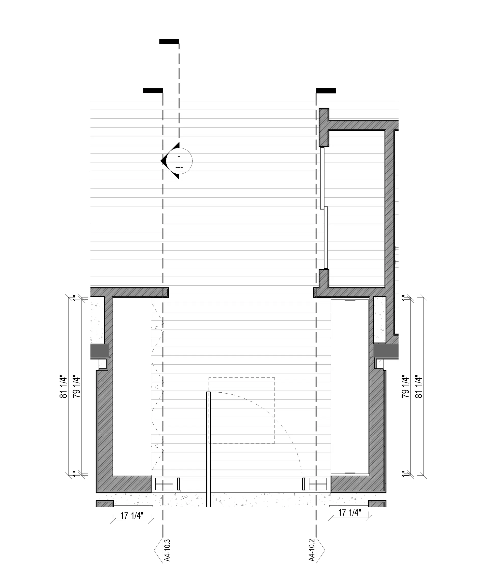
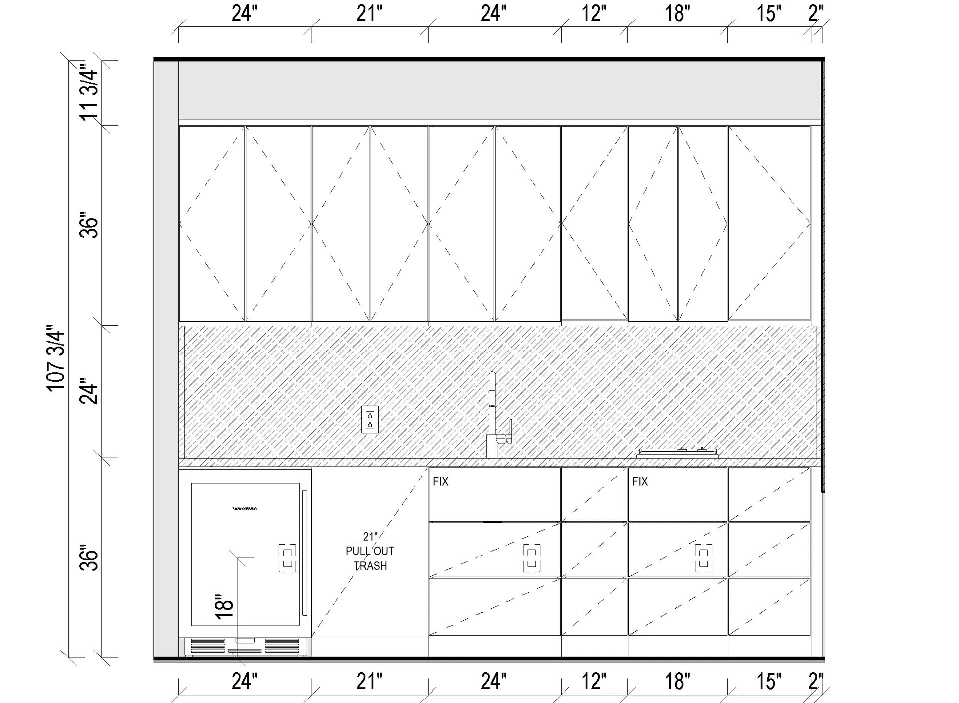
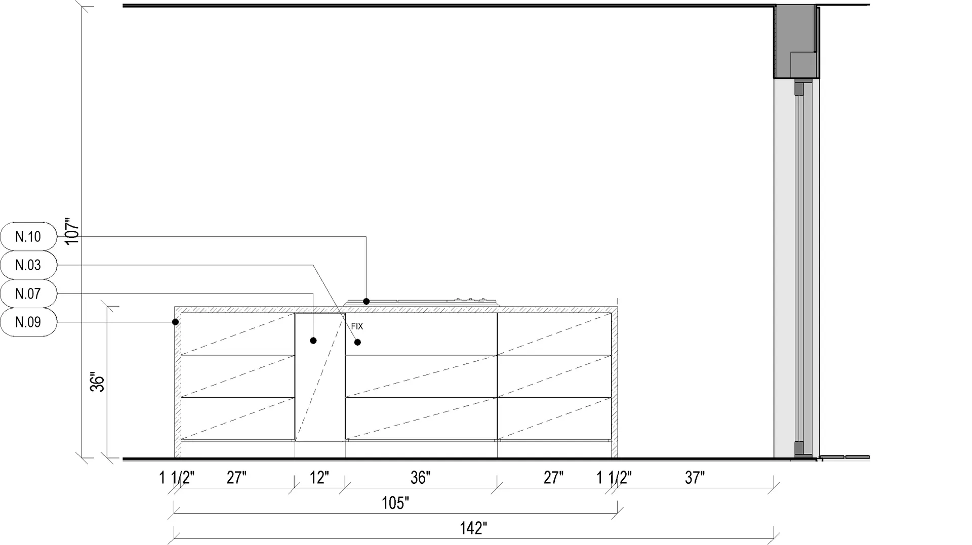
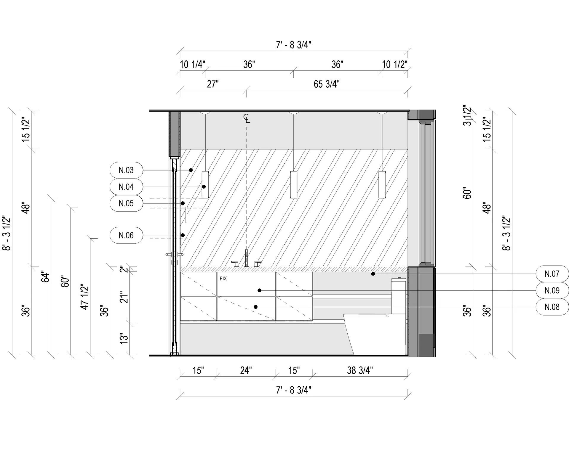
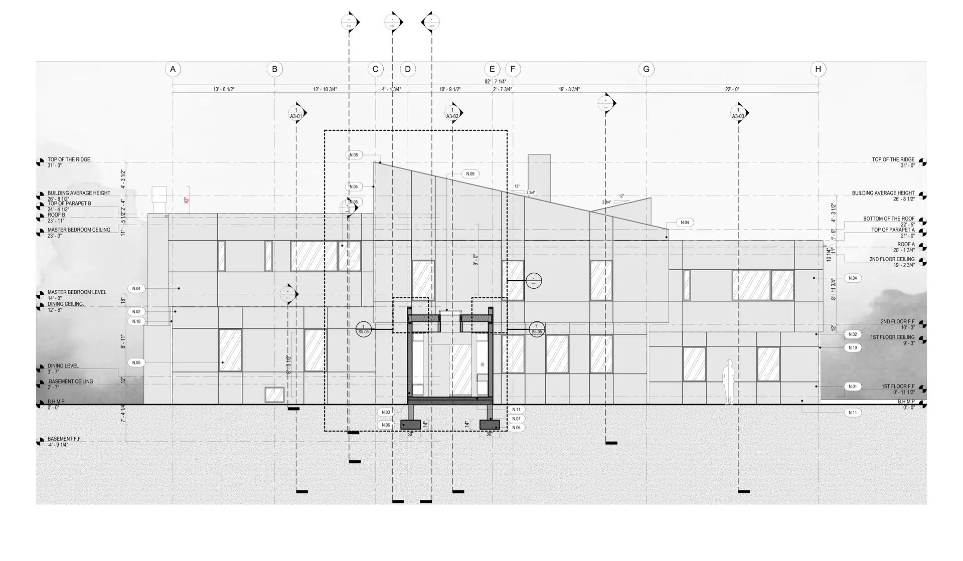
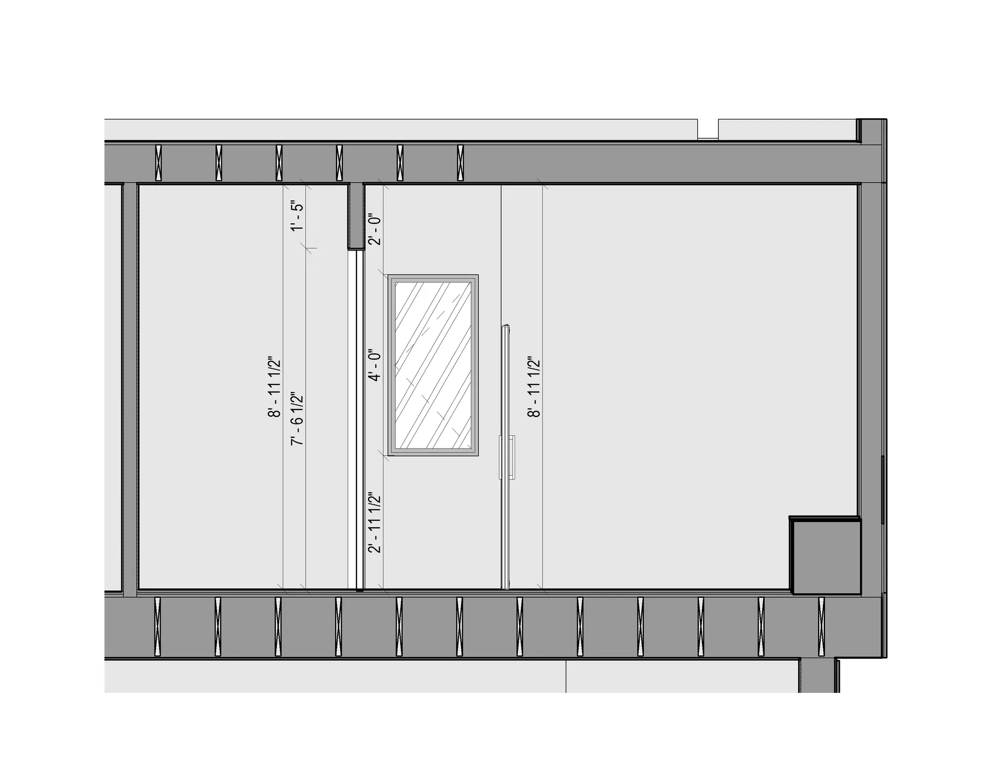
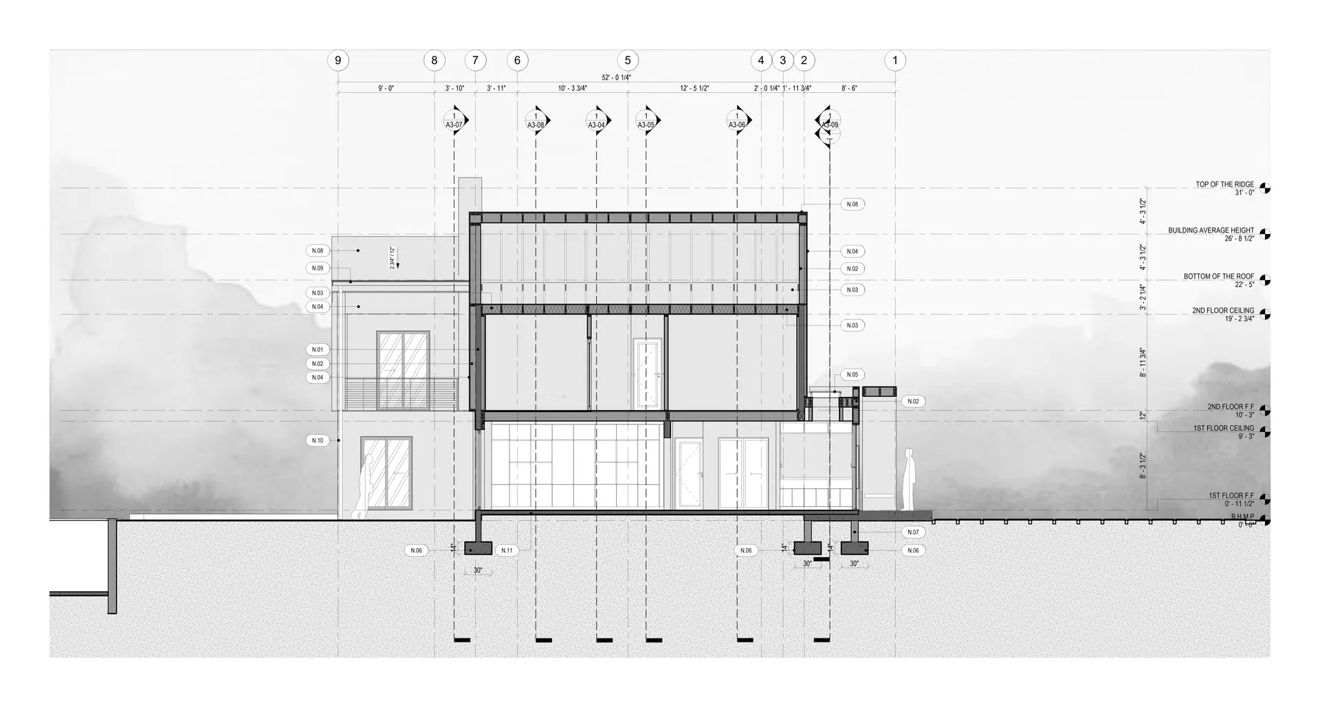
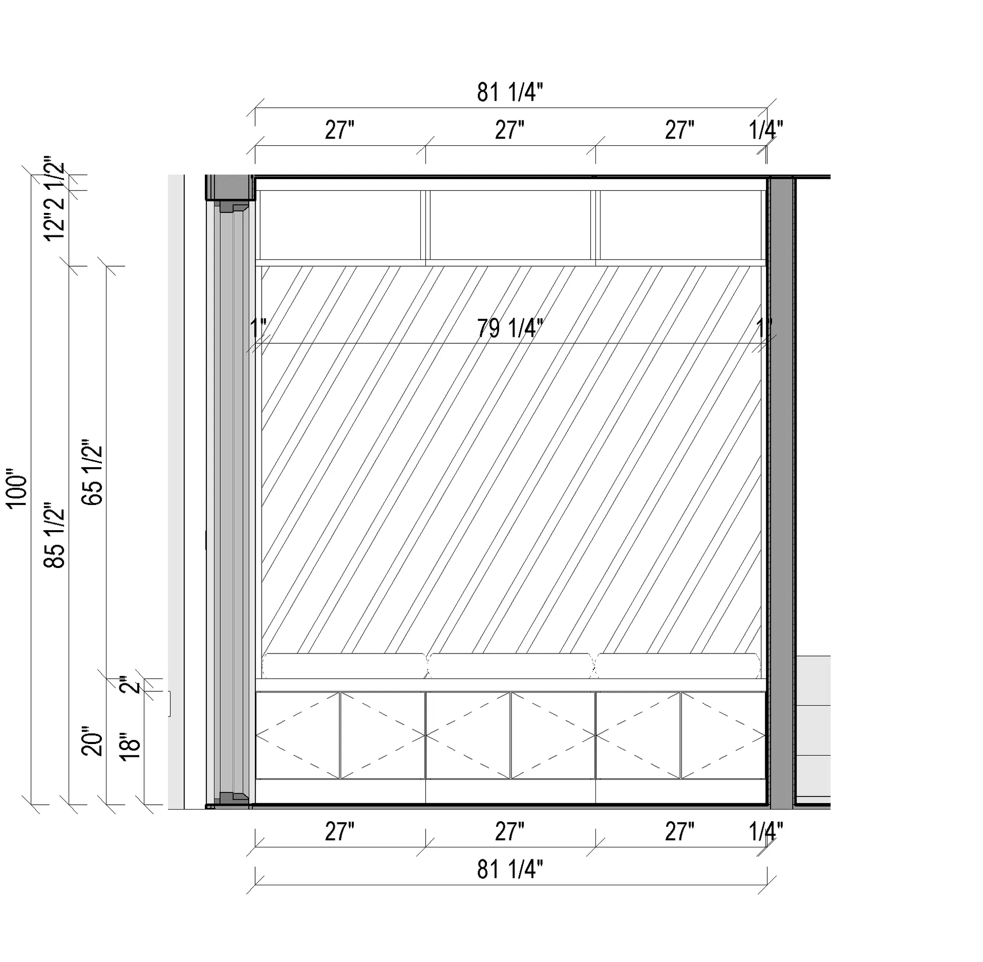
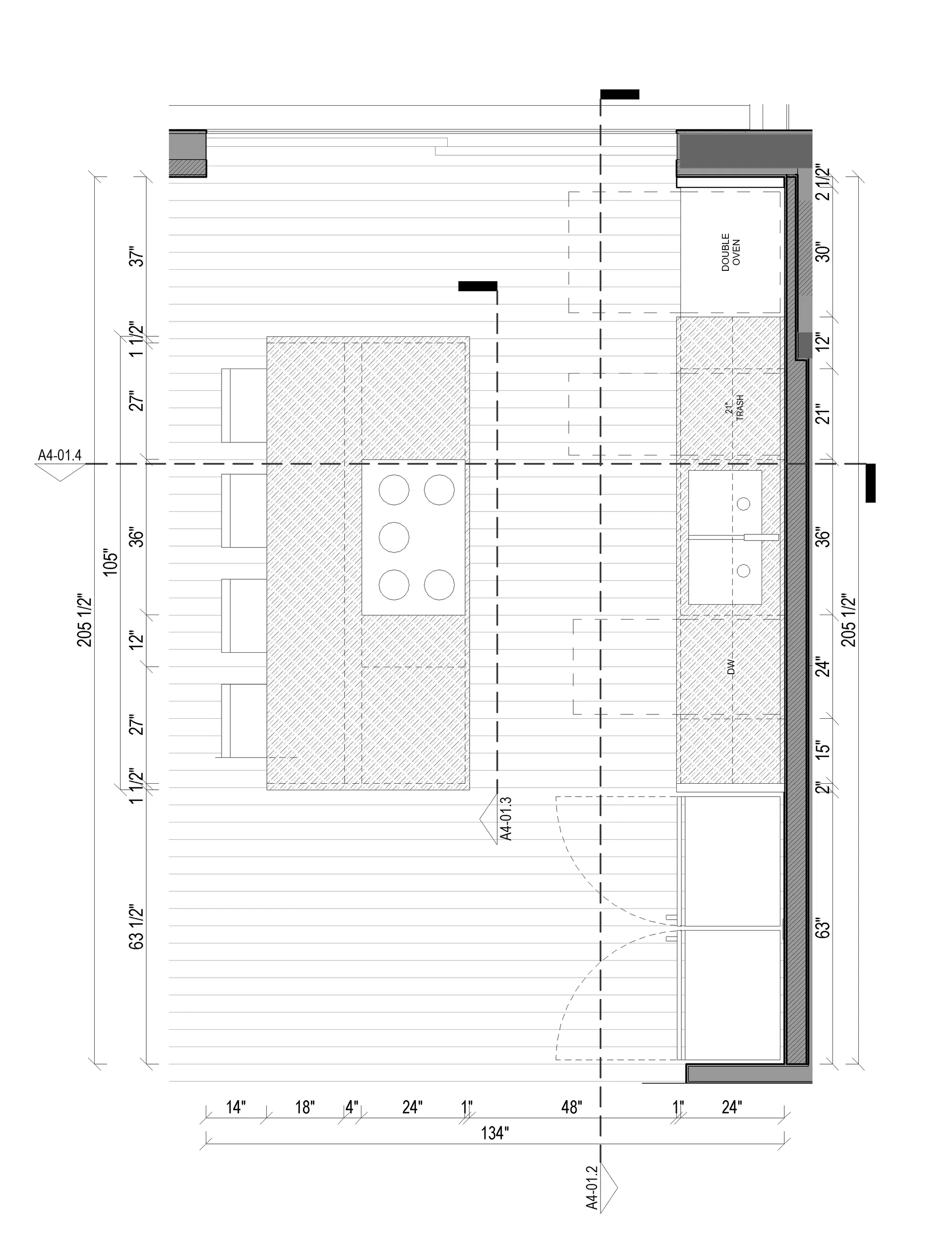
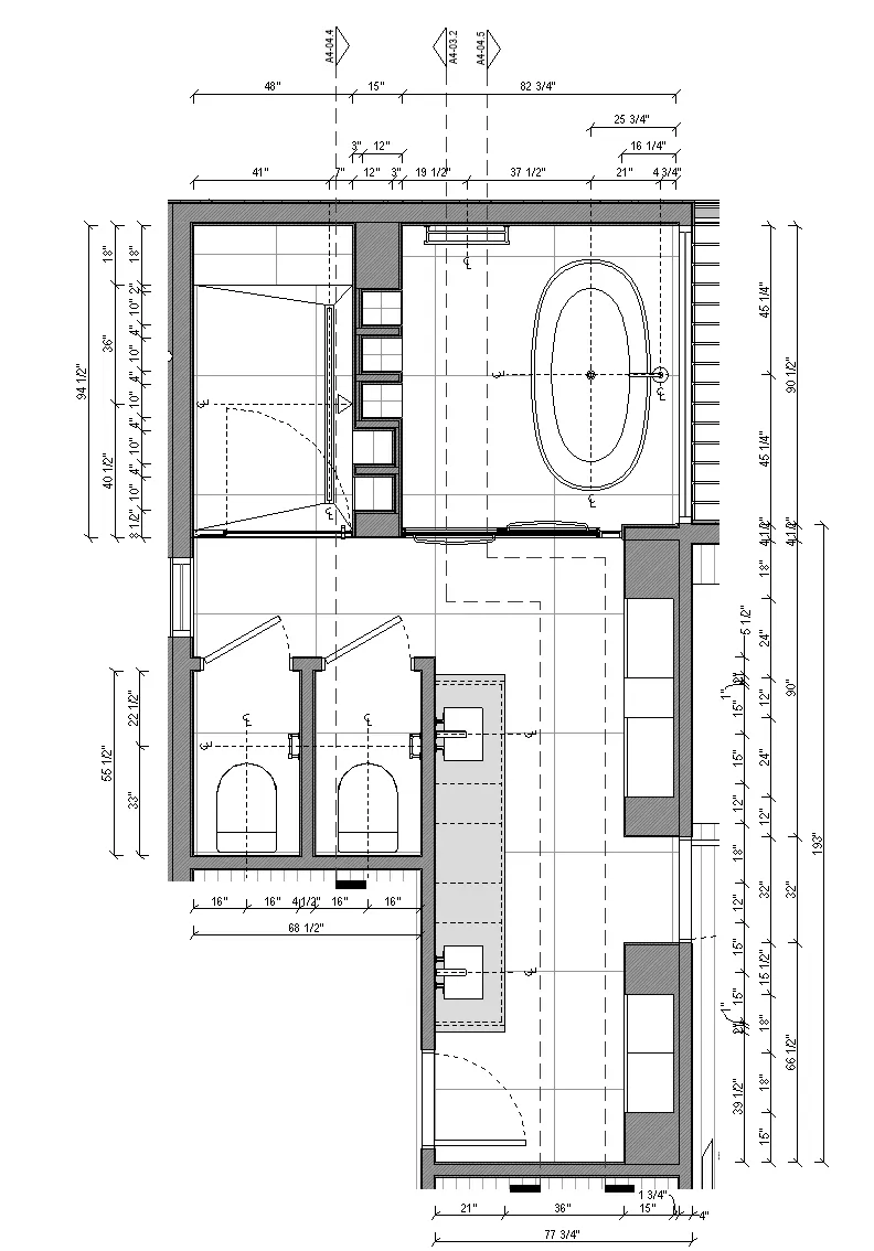
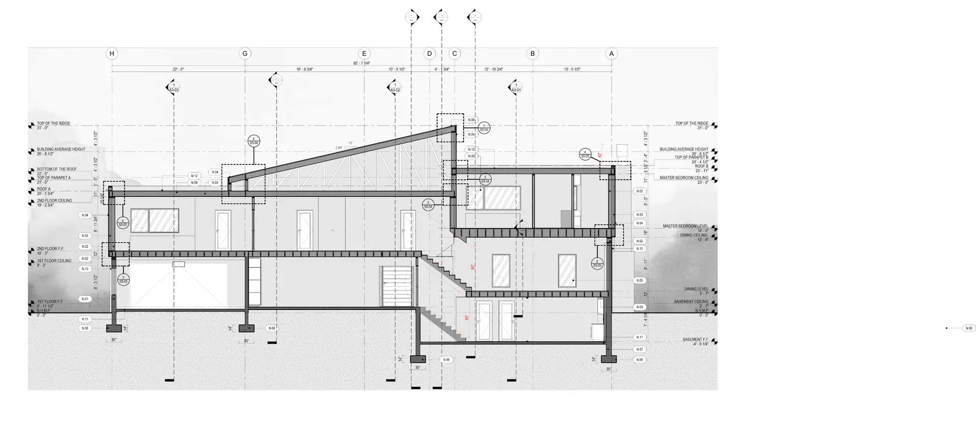
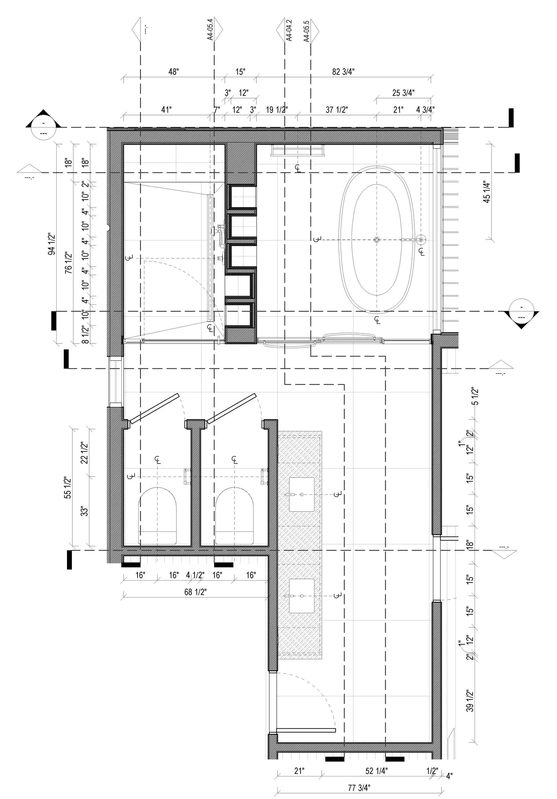
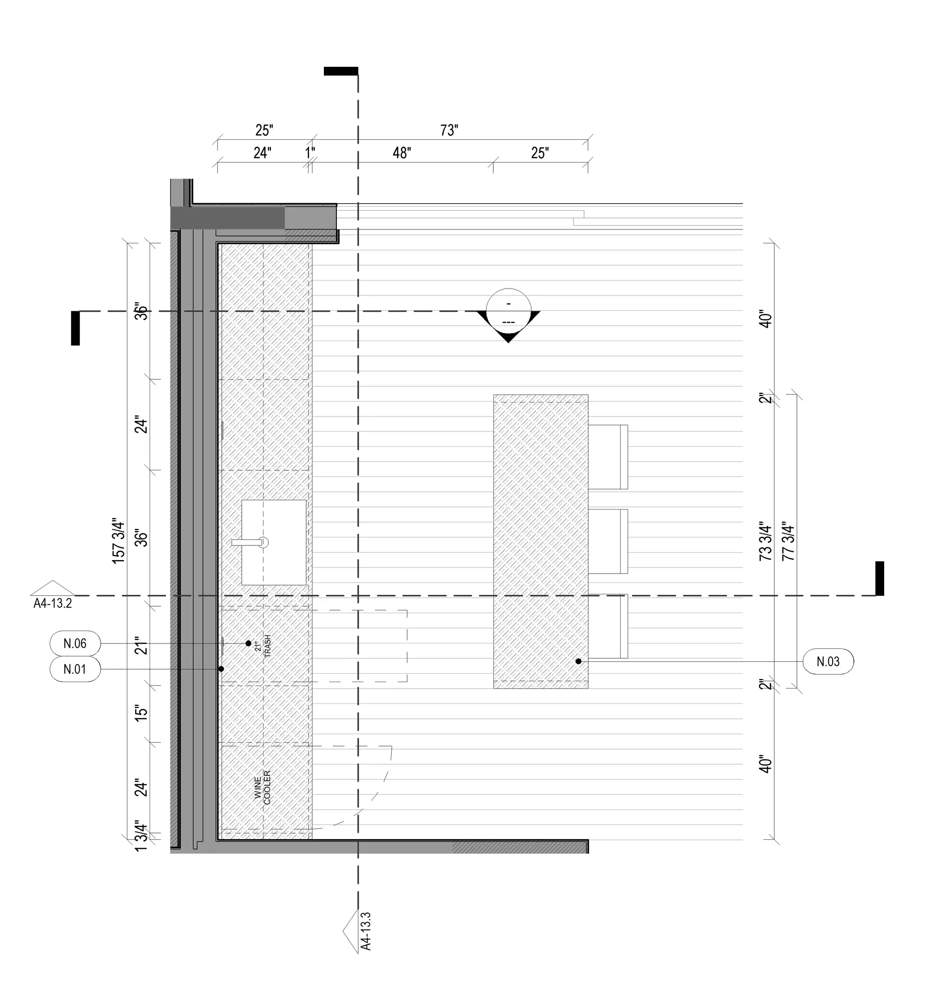
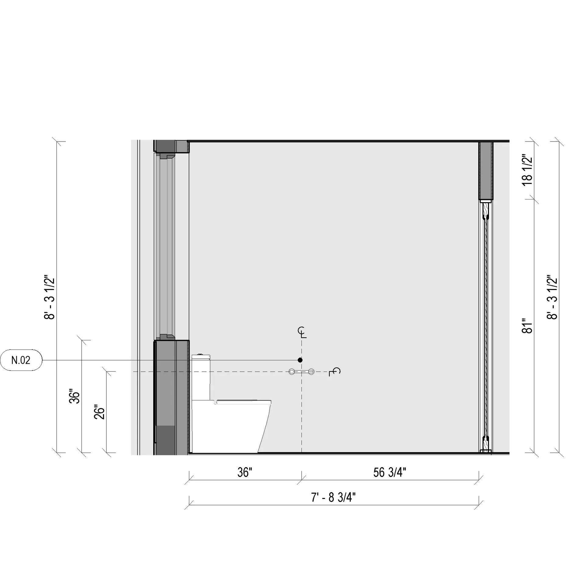
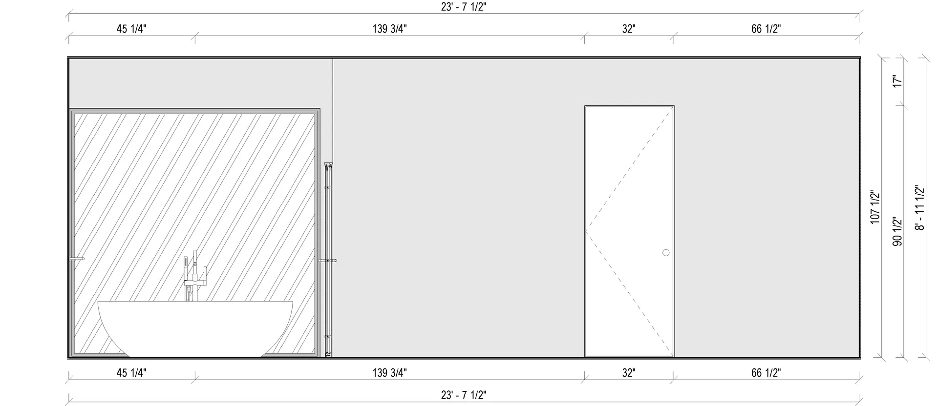
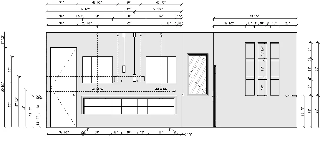
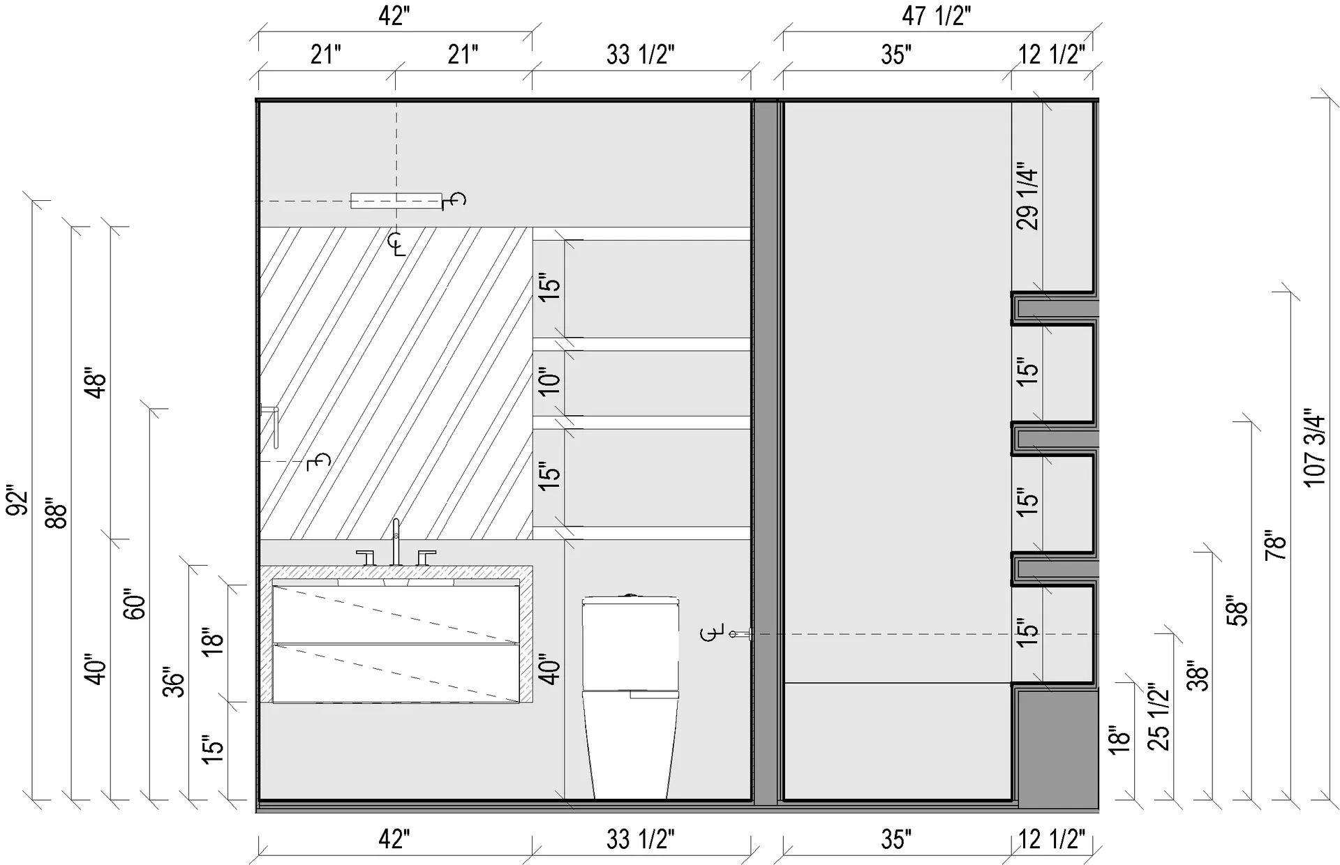
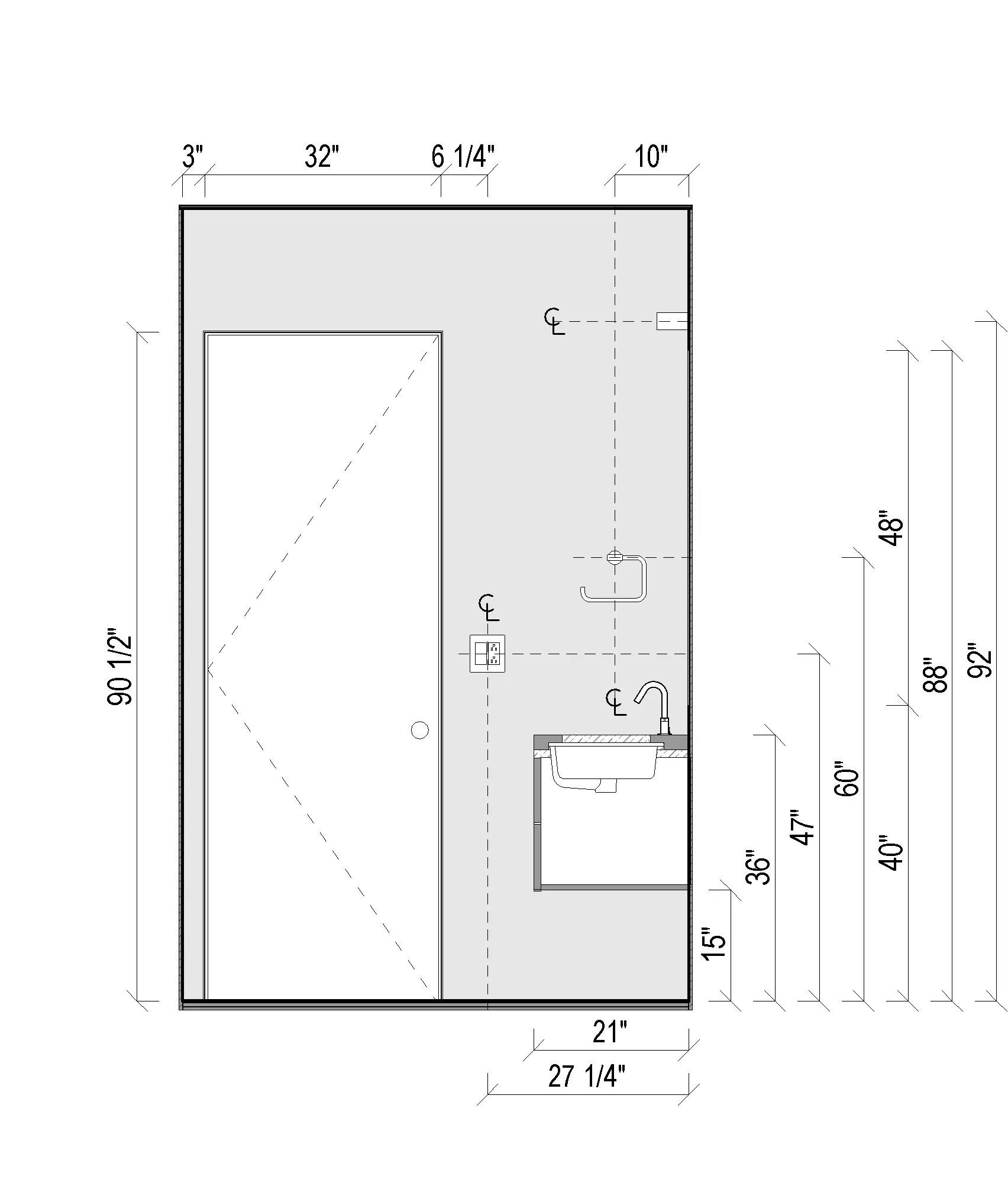
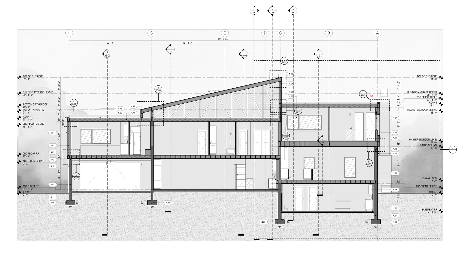
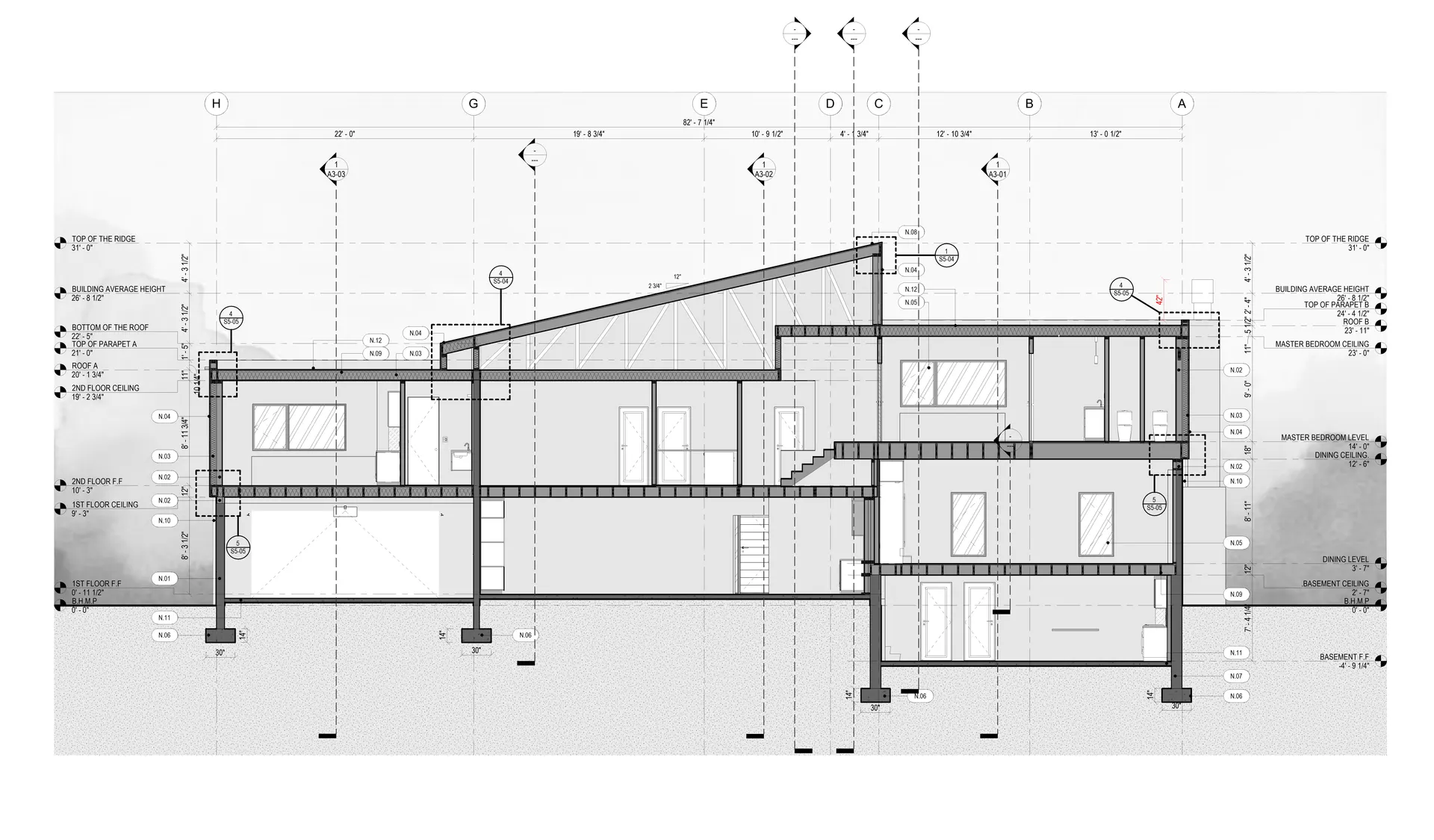
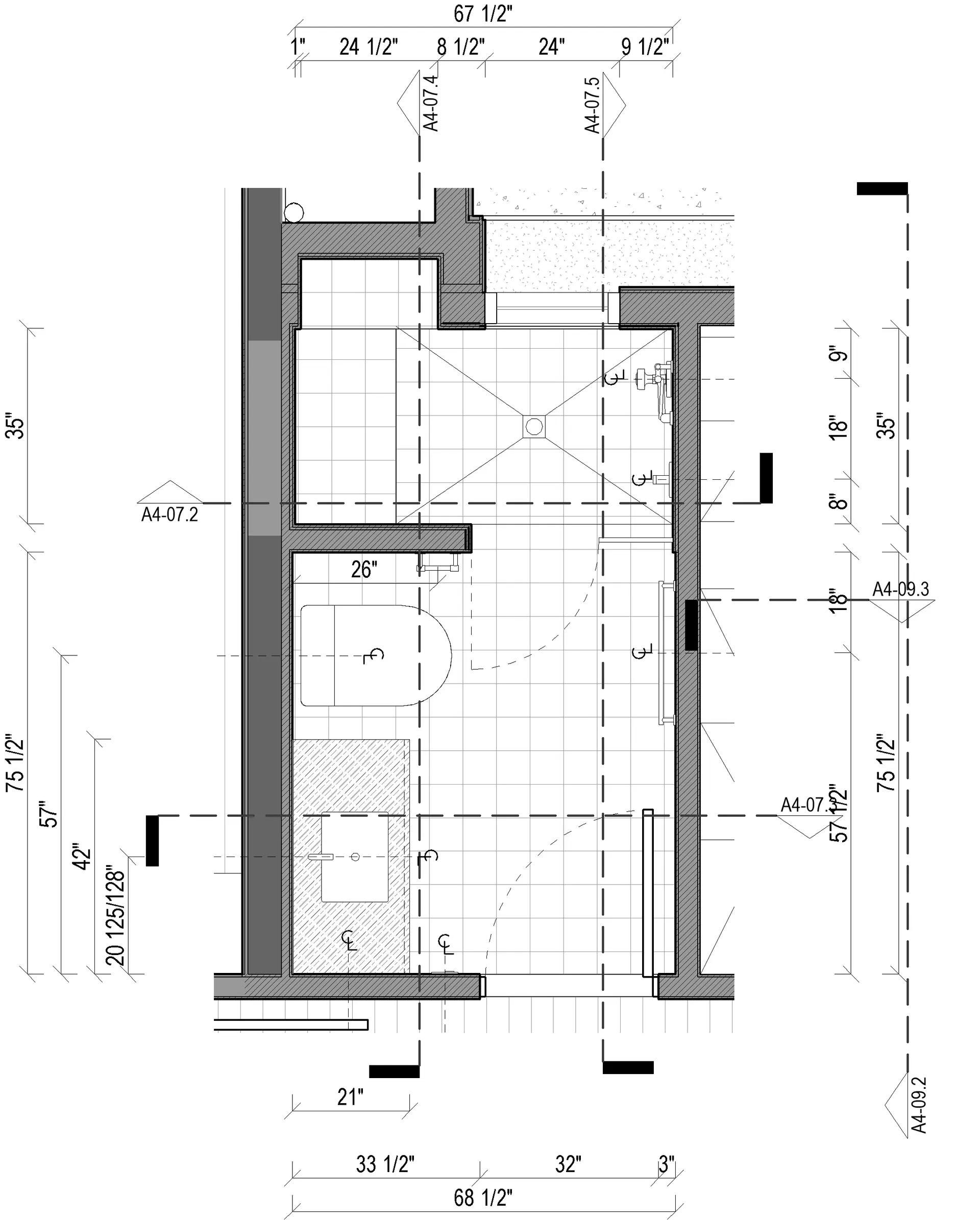
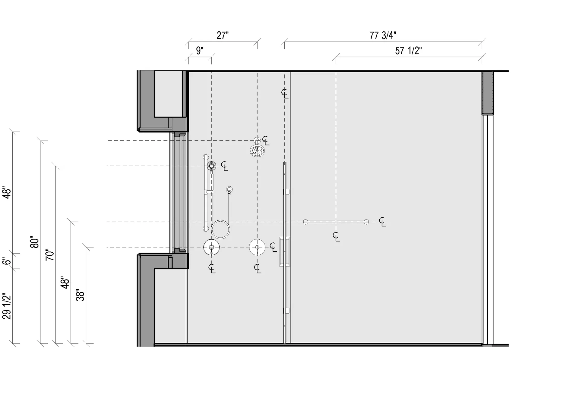
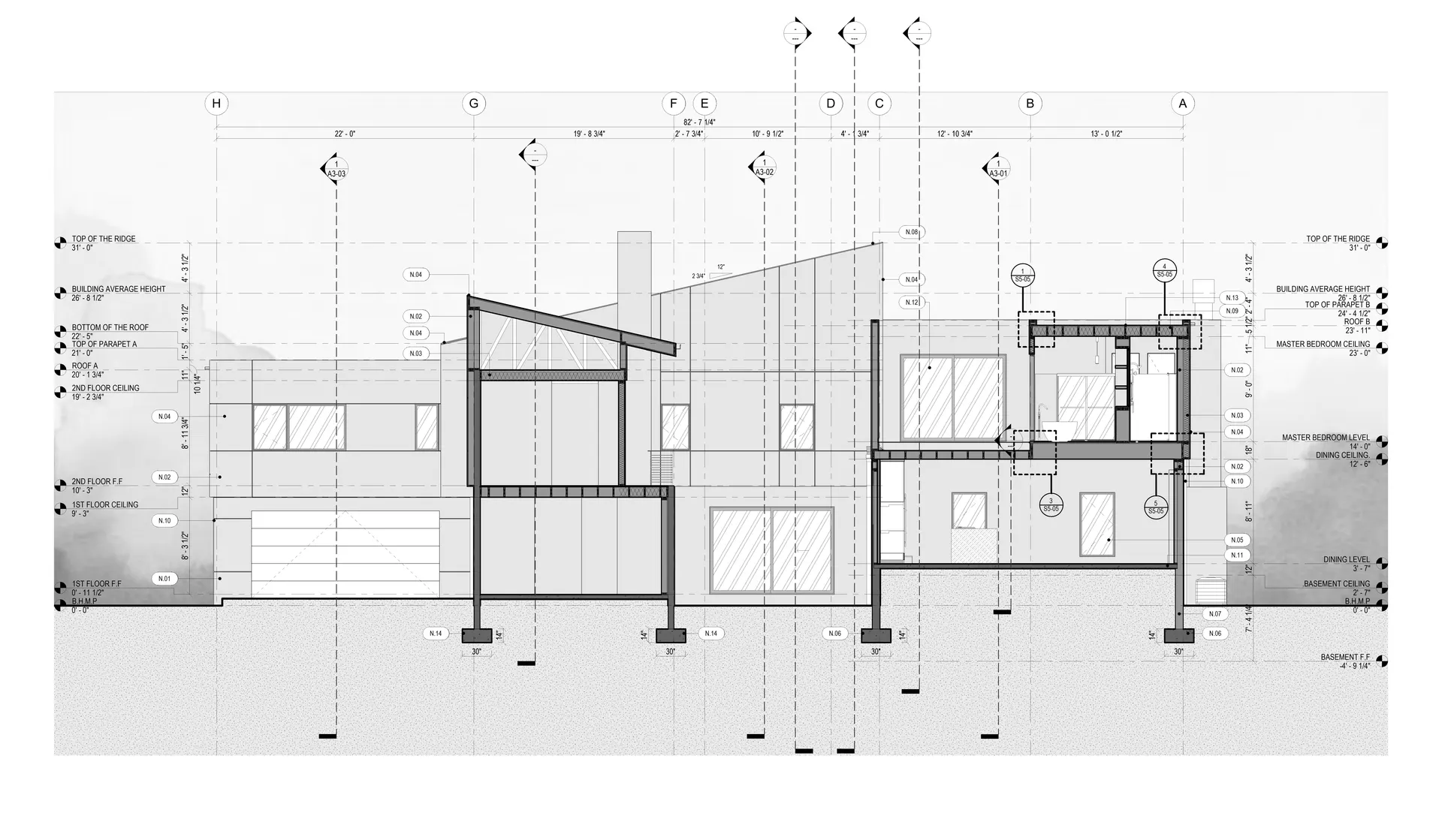
7301 Marbury Rd — Residential
Role: BIM Manager & Architect — Noor Architecture
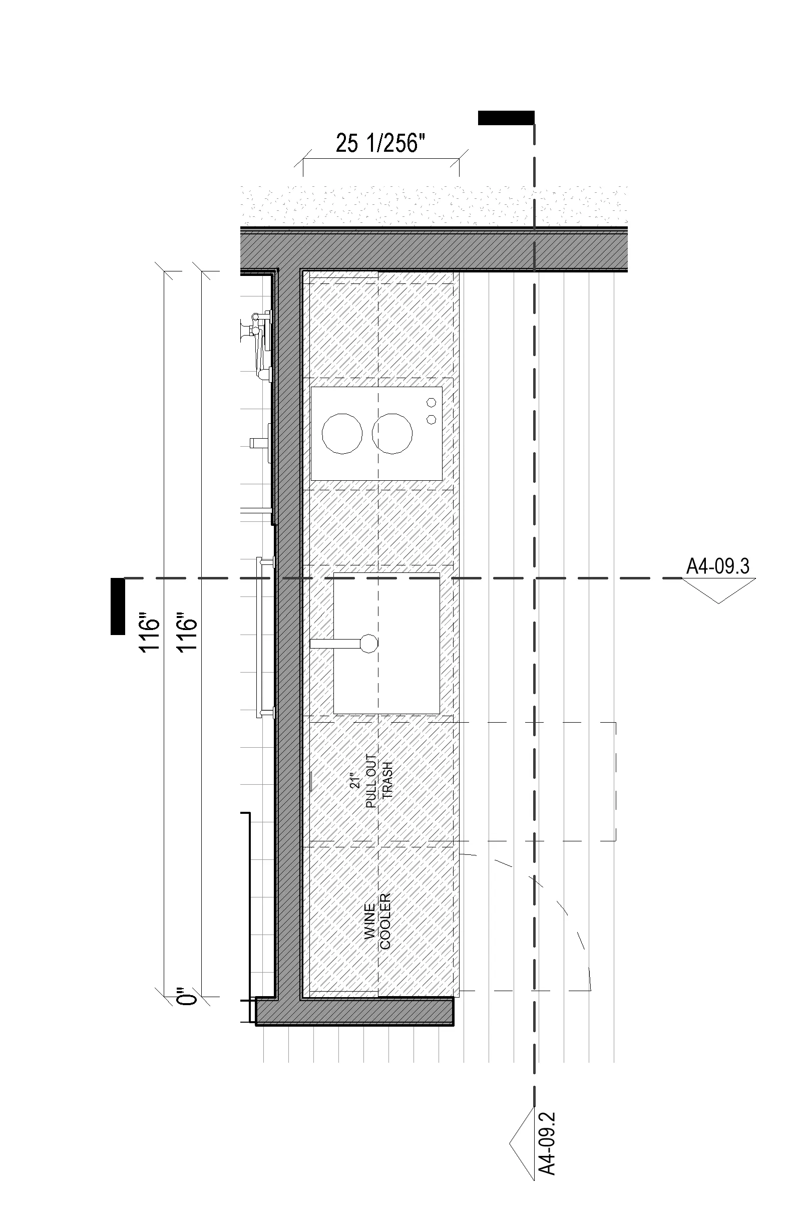
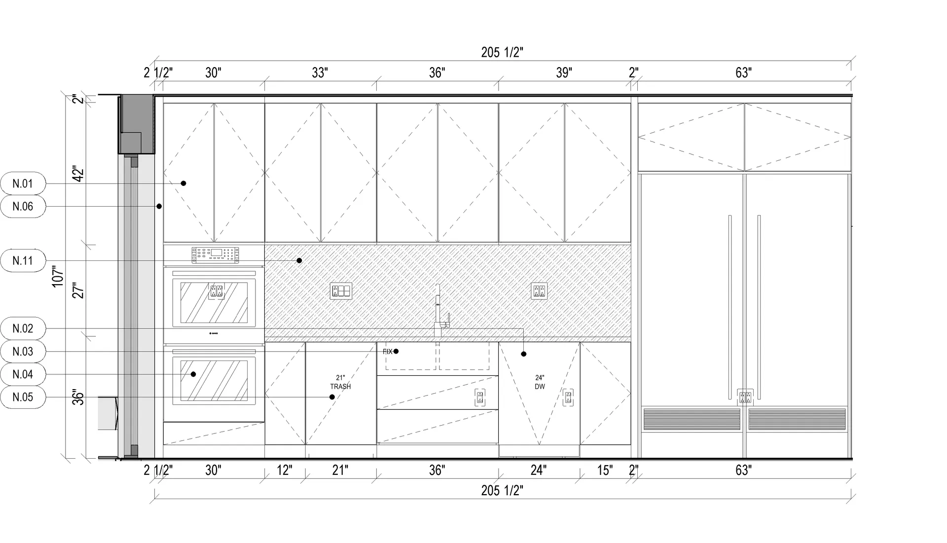
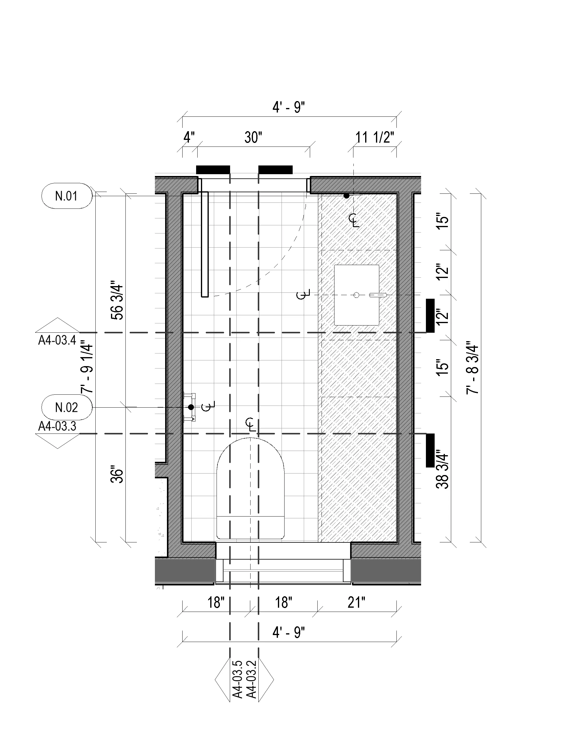
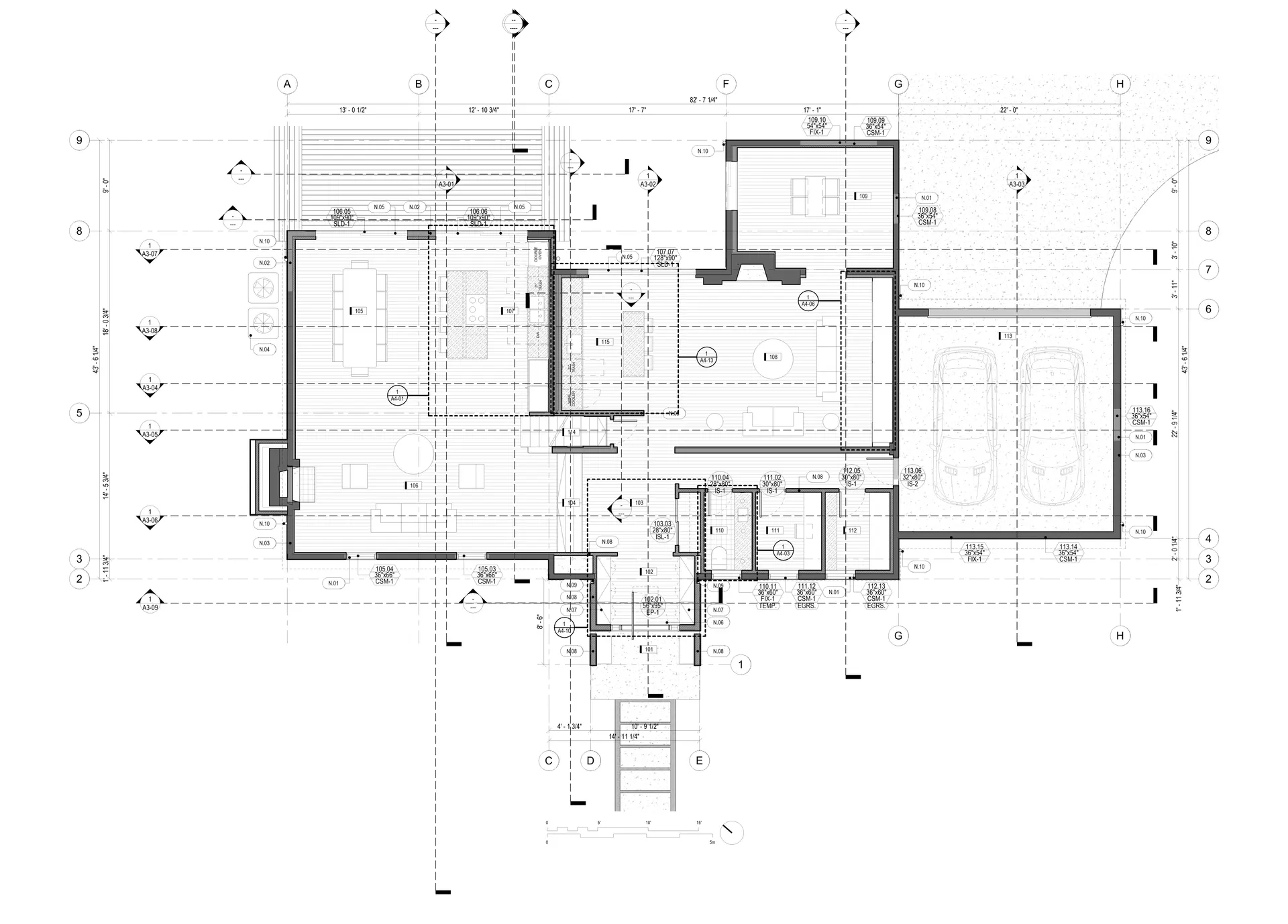
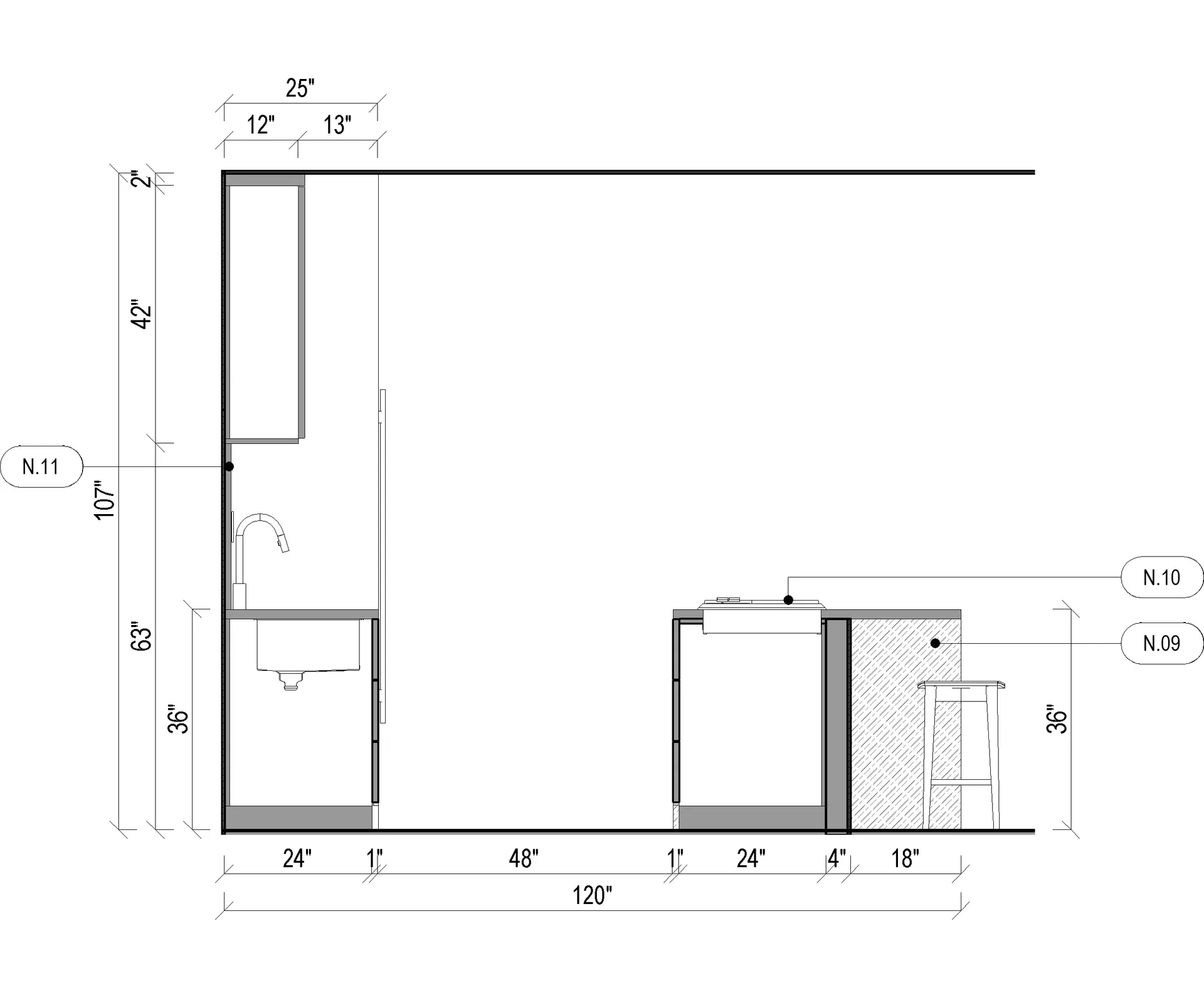
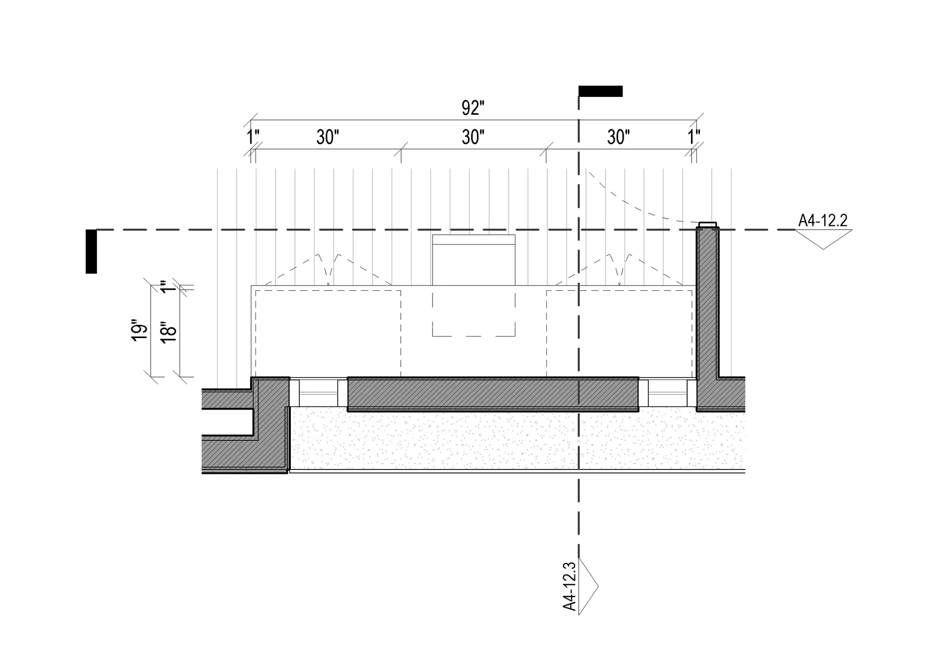
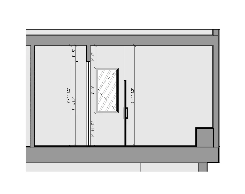
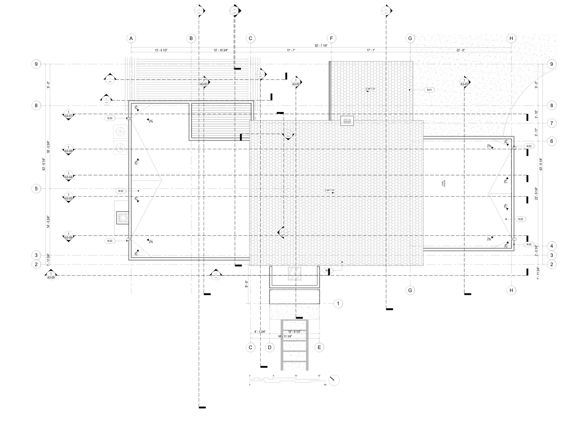
Balanced design with site constraints and client preferences; led architectural modeling from massing to interiors; coordinated with structure/MEP to eliminate clashes early; produced quantities and documents to support budgets and bidding.
