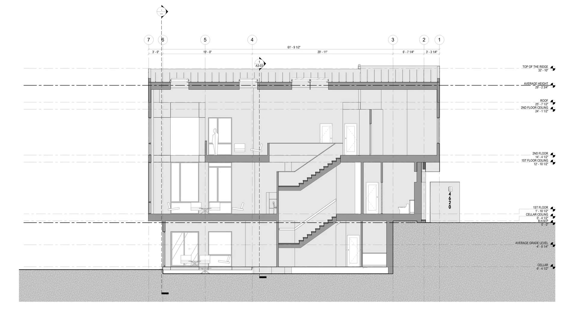
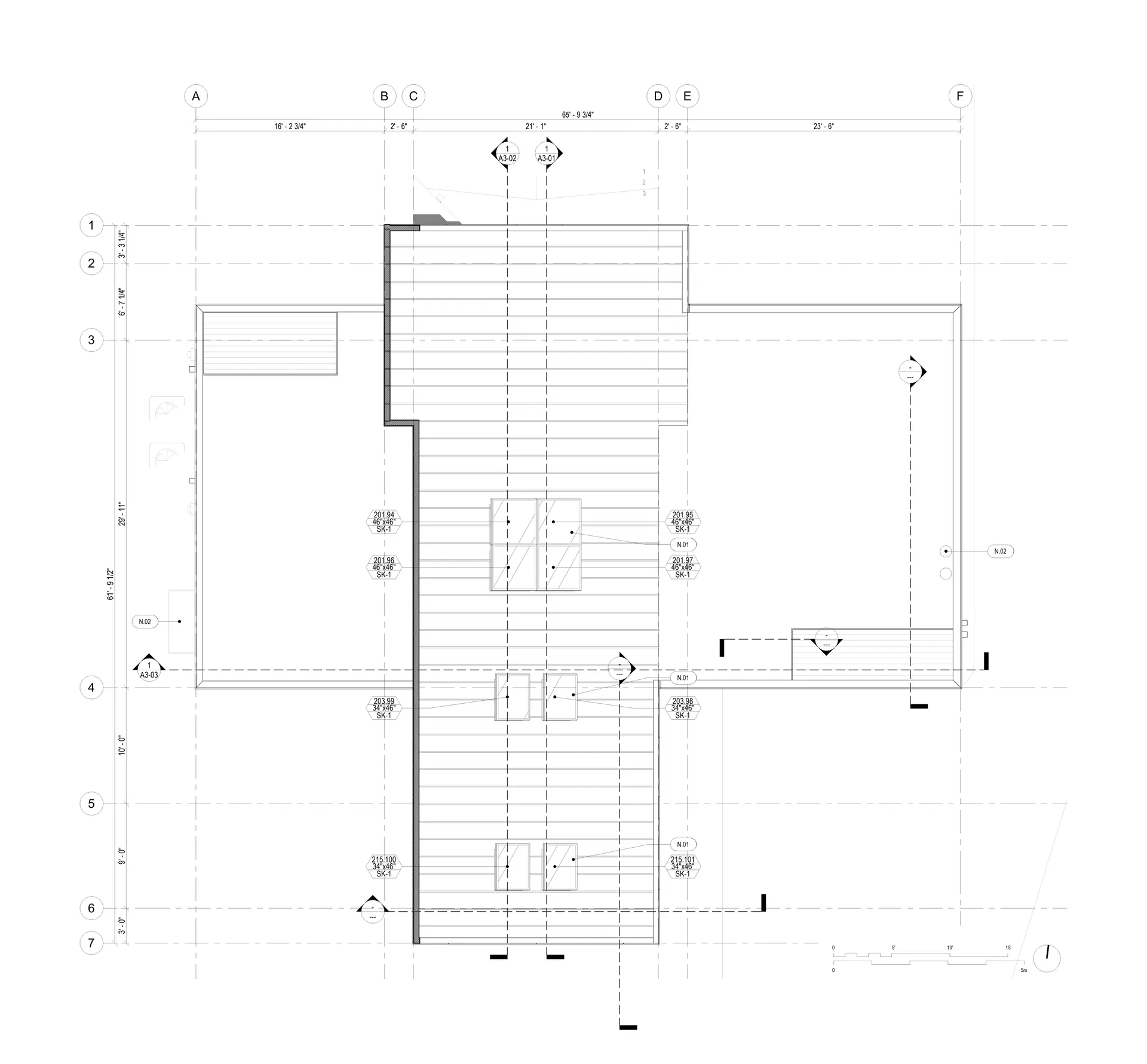
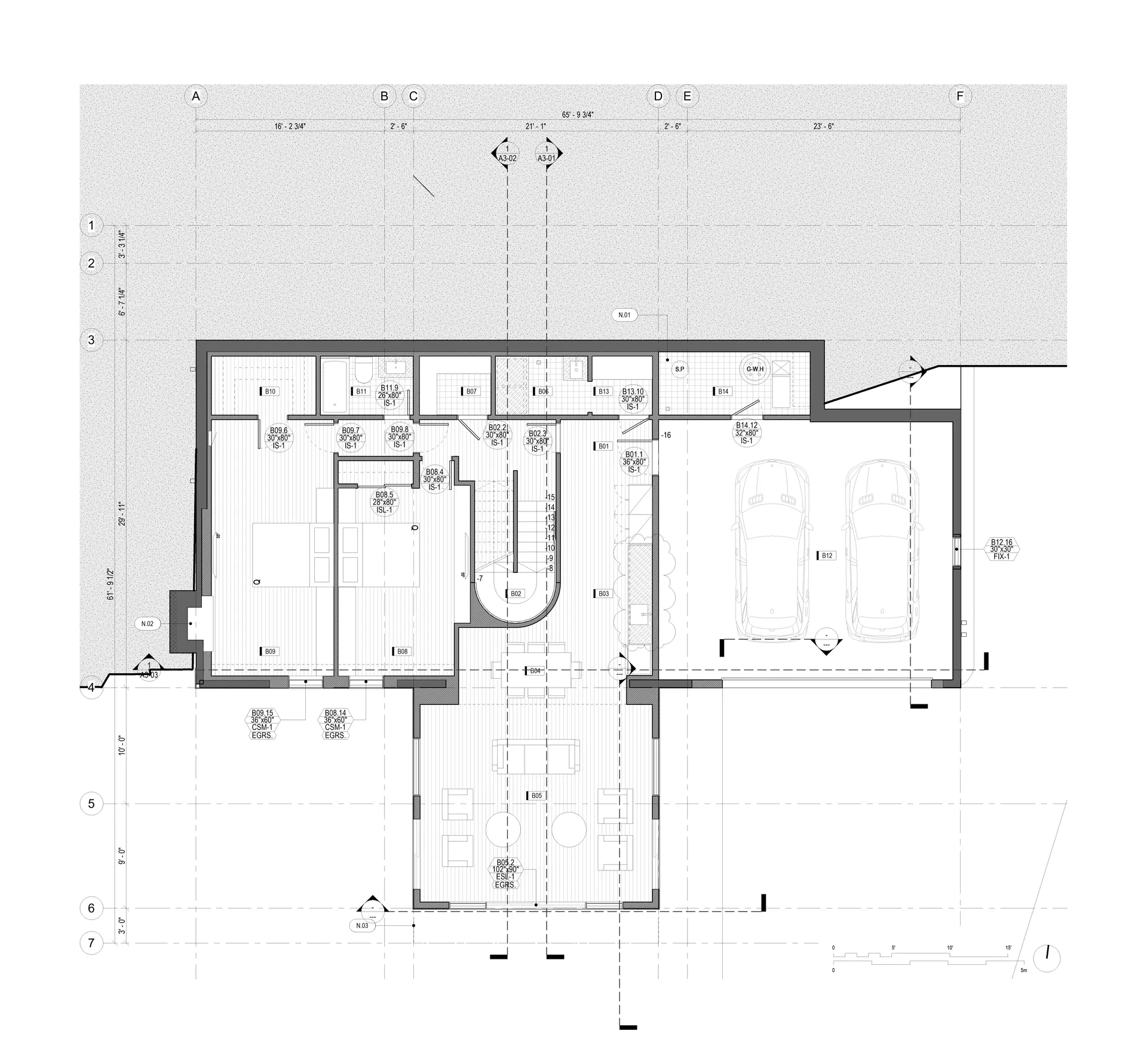
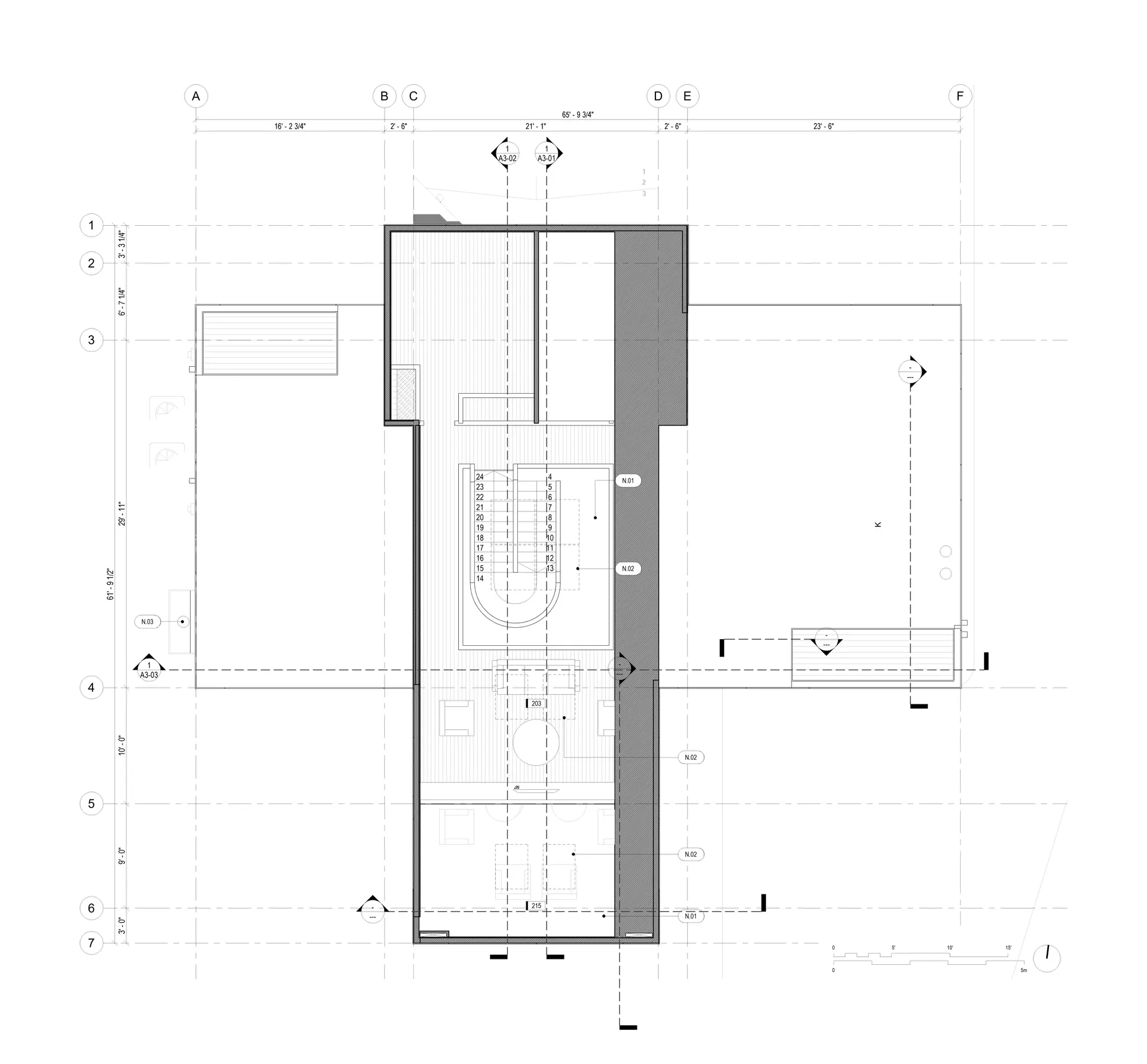
4620 26th St N — Residential
Role: BIM Manager & Architect — Noor Architecture
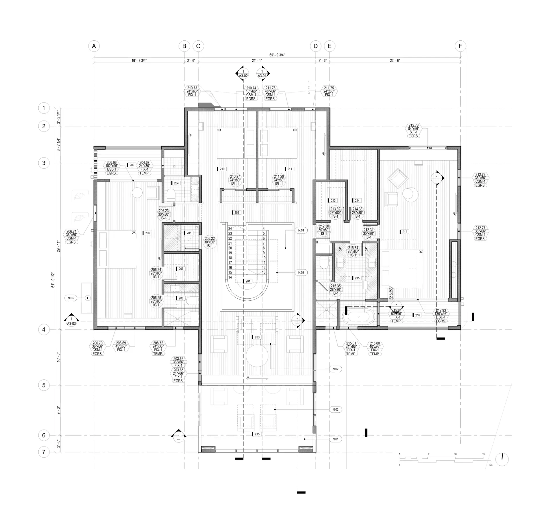
For this residence I maintained clean federated models and coordinated structure and MEP with architectural intent. I prepared construction documentation and schedules, and reviewed constructed photos/videos against design for as‑built accuracy.
