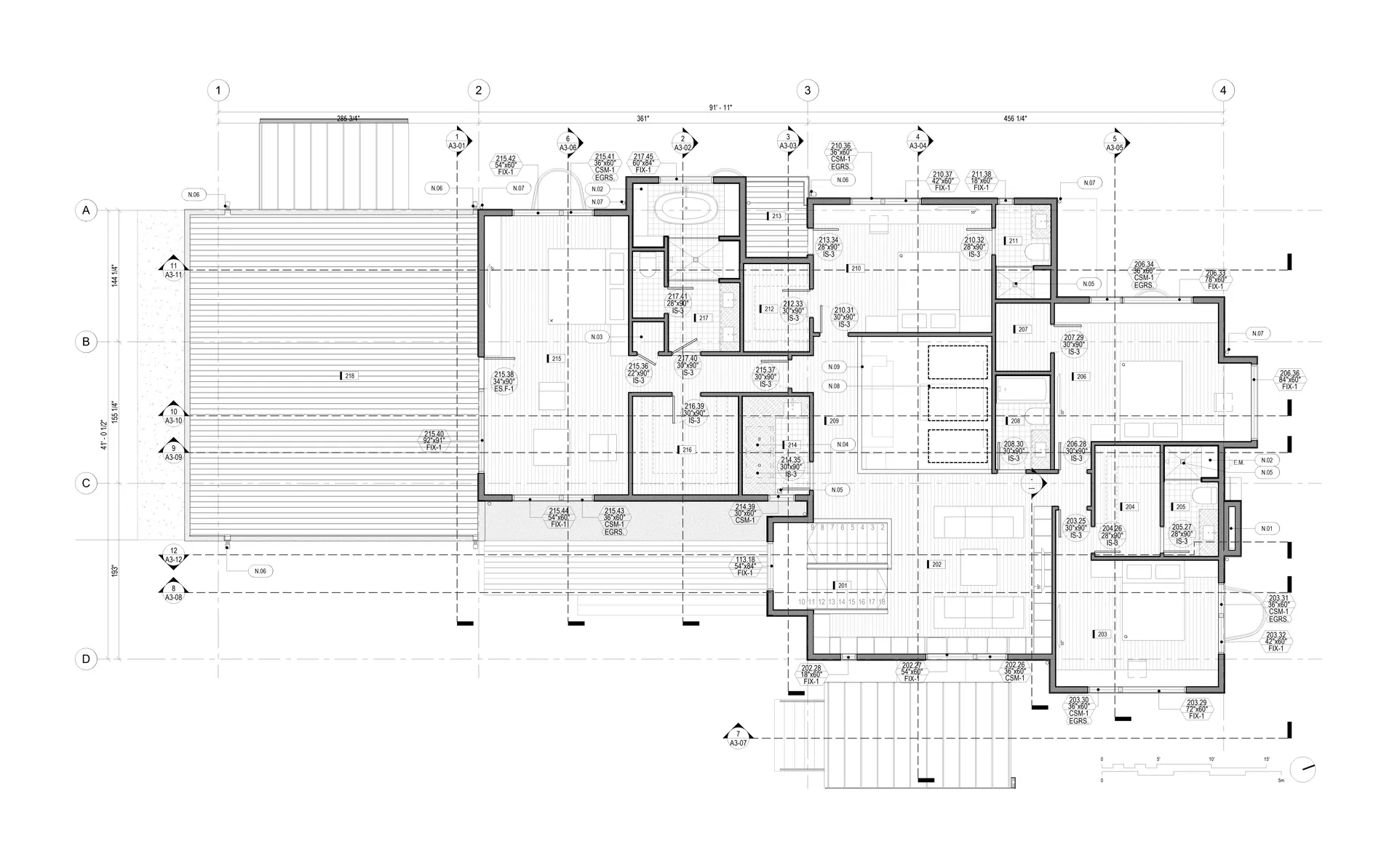
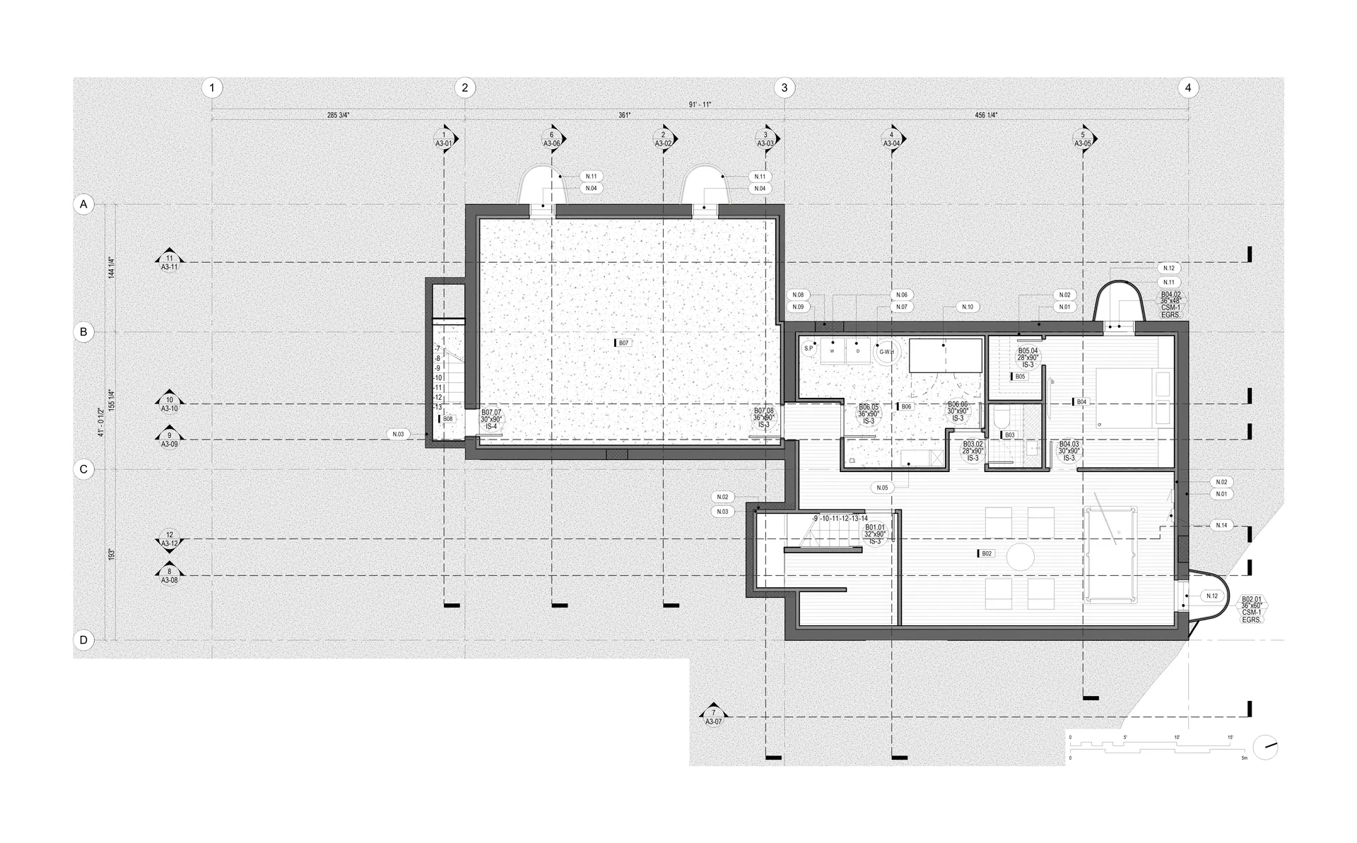
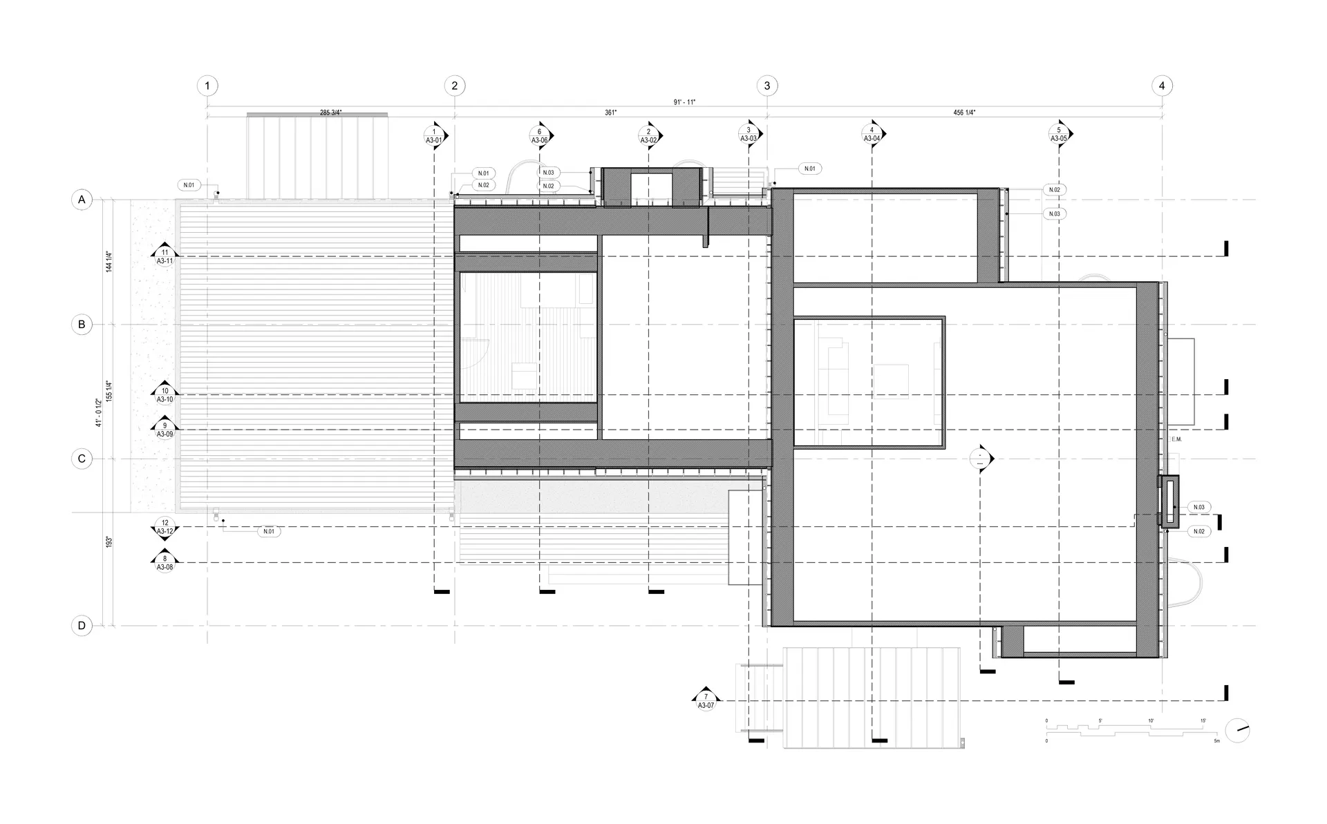
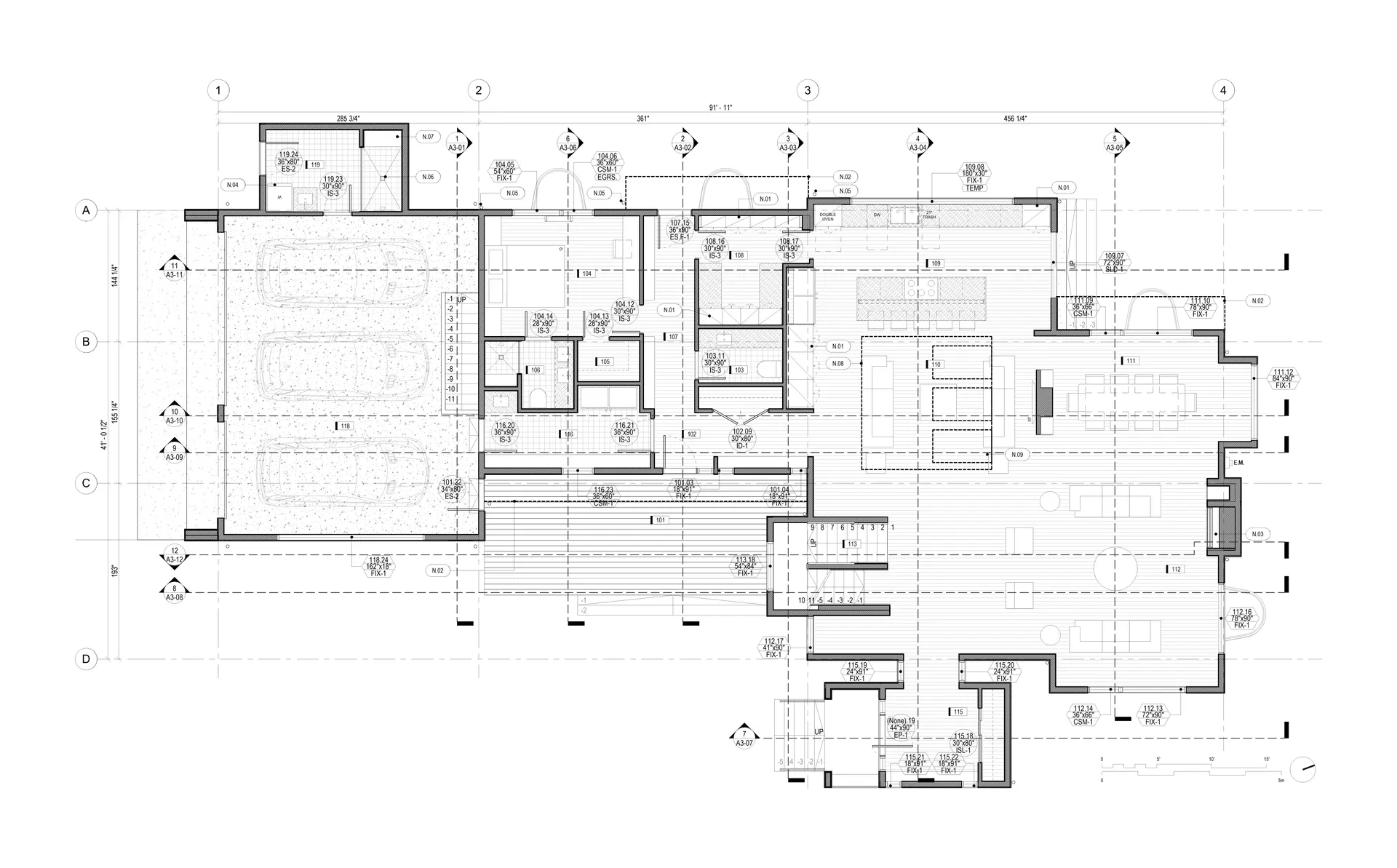
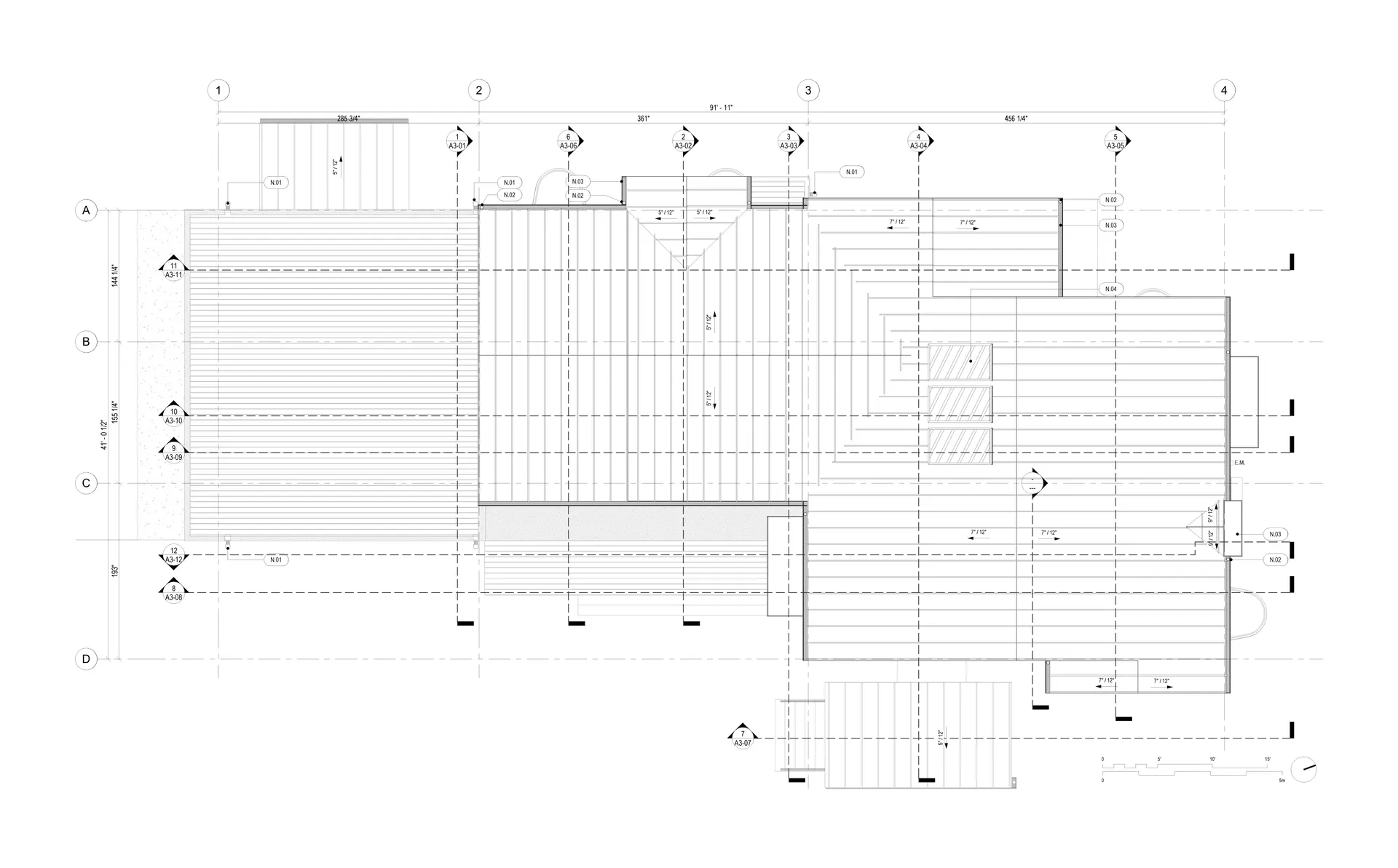
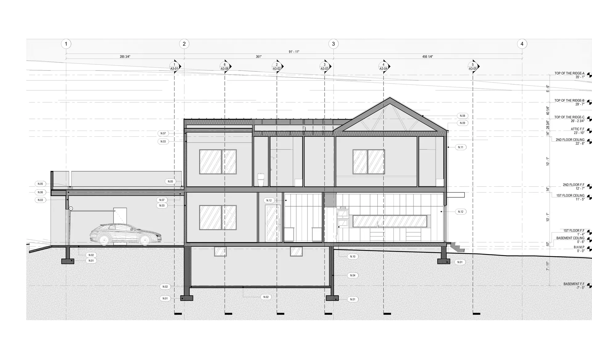
3508 Basford Rd — Residential
Role: BIM Manager & Architect — Noor Architecture
I led the architectural model and coordination, developing elevations, sections, plans, and detailed views for construction. I enforced LOD targets and parameter standards, resolved conflicts with structure/MEP, and delivered consistent documentation/BOQs.
