BIM Workflow
My approach is simple: set up clear rules and data early, keep teams aligned through short coordination cycles, and validate models continuously so documentation and BOQs are predictable. Below is the workflow I apply on residential and large mixed‑use projects alike.
BIM Execution Planning (BEP)
I define goals, uses, LOD targets, roles, and exchanges upfront; set naming and parameter standards; and configure templates so production is consistent across teams and phases.
- Scope and roles aligned to ISO 19650 (appointing party, lead, task teams).
- Model uses and LOD by phase (SD, DD, CD, As‑Built) with acceptance criteria.
- File naming, shared parameters, and coordinates; workset and view template strategy.
- Information exchanges: who delivers what, when, and in which format (RVT/IFC/NWC).
Deliverables: BEP PDF, LOD matrix, shared parameter file, template set.



Model Development & Coordination
I structure architectural, structural, and MEP models for clean federation; run regular 3D reviews to keep geometry and data aligned; and maintain model health and predictable outputs.
- Weekly coordination cycle: publish → federate → review → assign issues → verify fixes.
- Model health checks: warnings, duplicate types, view/template drift, purge strategy.
- Disciplines stay decoupled but share coordinates, grids/levels, and naming rules.



Clash Detection and Resolution
Using Navisworks/ACC/Revizto, I schedule clash cycles, differentiate hard vs. soft clashes, assign issues with clear context, and track them to closure before documentation is issued.
- Rulesets: hard clashes (penetrations), soft/clearance (service zones, access), visual checks.
- Issue lifecycle: New → Assigned → In review → Resolved → Verified (with screenshots/markups).
- Prioritization: safety/structural first, then services, then architectural refinements.
Outcome: fewer RFIs and rework; cleaner CDs; predictable install paths.
Quality Assurance & LOD Compliance
I enforce LOD requirements, validate parameters and metadata, and run scripted checks to detect outliers early, ensuring models support BOQs, coordination, and handover.
- Dynamo automations for parameter population, view/sheet creation, and QC reports.
- LOD spot‑checks per package; door/window/fixture schedules reconciled against design intent.
- IFC/NWC exports validated for naming, units, and coordinate consistency.



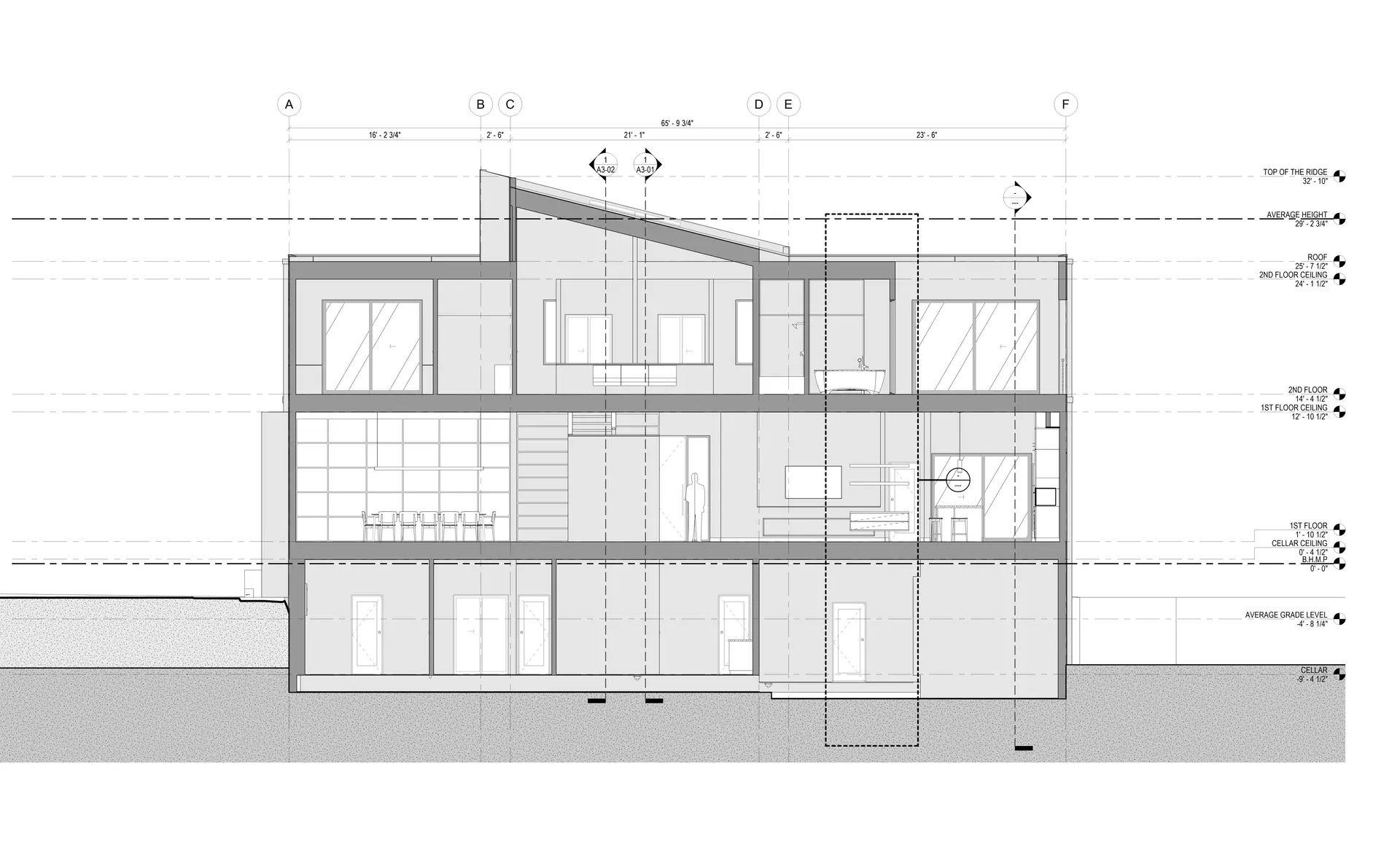
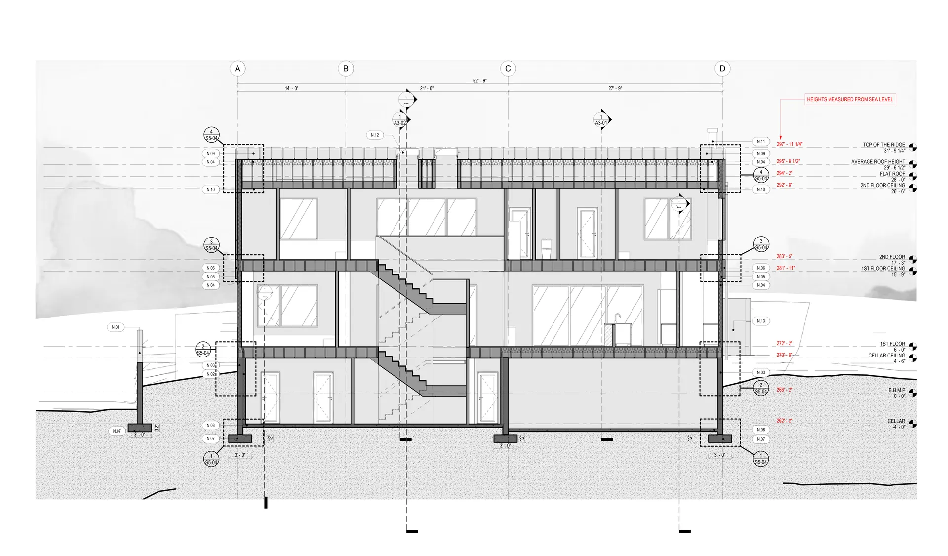
Documentation & As-Builts
I produce coherent plan/section/elevation sets, schedules, and detail sheets; and update as‑built models to reflect site conditions, supporting facility operations post‑handover.
- Drawing set structure: cover → plans → sections → elevations → details → schedules.
- BOQs from model data; cross‑checks with model views to prevent miscounts.
- As‑built updates from field markups; asset data verified against client requirements.



Collaboration & Training
I lead coordination meetings, manage model sharing on cloud platforms, and mentor teams to raise BIM capability across the organization.
- Platforms: Autodesk Revit, Navisworks, Dynamo, BIM 360/ACC, Revizto.
- Weekly/bi‑weekly stand‑ups; milestone reviews with action lists and owners.
- Playbooks and video walk‑throughs for onboarding and consistent delivery.



Value for Clients
- Fewer field conflicts and change orders through early clash resolution.
- Reliable BOQs and documentation, improving bid accuracy and schedule confidence.
- Clear governance and traceability aligned with ISO 19650 principles.
Get Started
I can tailor this workflow to your project in a short kickoff call. Share a few lines about your scope and timeline on the contact page.
